일 | 월 | 화 | 수 | 목 | 금 | 토 |
---|---|---|---|---|---|---|
1 | 2 | 3 | 4 | |||
5 | 6 | 7 | 8 | 9 | 10 | 11 |
12 | 13 | 14 | 15 | 16 | 17 | 18 |
19 | 20 | 21 | 22 | 23 | 24 | 25 |
26 | 27 | 28 | 29 | 30 | 31 |
- 광교오피스매매
- 광교사무실
- 광교효성해링턴타워오피스
- 광교두산위브
- 광교엘포트아이파크
- 광교오피스텔원룸전세
- 광교효성해링턴타워
- 광교엘포트아이파크원룸전세
- 광교지식산업센터
- 수원지식산업센터임대
- 광교오피스텔원룸
- 광교엘포트아이파크원룸매매
- 광교엘포트아이파크원룸
- 광교오피스텔전세
- 광교오피스텔원룸매매
- 광교sk뷰레이크타워
- 광교오피스텔원룸월세
- 광교센트럴푸르지오시티
- 에이스광교타워3차임대
- 광교센트럴푸르지오시티월세
- 광교센트럴푸르지오시티원룸
- 광교오피스텔
- 광교오피스텔매매
- 광교오피스텔월세
- 광교엘포트아이파크원룸월세
- 광교센트럴푸르지오시티원룸월세
- 광교유니코어
- 힐스테이트광교중앙역
- 광교지식산업센터임대
- 광교사무실임대
- Today
- Total
굿비즈부동산ㅣblog
수원 '에이스 스마트윙 영통' 지식산업센터 단지 안내 본문
지식산업센터는 기업들이 제조공장 및 사무공간으로 사용하는 기업형 부동산입니다. 기업을 대상으로 하는 만큼 투자 리스크가 다른 부동산에 비해 매우 큰 부동산입니다. 따라서 지식산업센터 투자를 고려한다면 기업들이 많은 대기업 인근이나 편리한 교통 시스템을 갖춘 지역을 선택하는 것이 좋습니다.
특히 대기업이 있는 지역을 선택하는 이유는 임대수요가 풍부해 공실 위험이 적은 데다 환금성이 높아 가격 상승률이 높기 때문입니다.
수원 '에이스 스마트윙 영통' 지식산업센터가 전문가들이 추천하는 그런 지식산업센터입니다. 수원은 글로벌 기업인 삼성전자, 전기 등이 있는 지역이어서 전통적으로 크고 작은 기업들이 타 도시에 비해 월등히 많은 지역 중의 하나입니다. 또 삼성 디지털시티를 비롯해 삼성전자 기흥ㆍ화성 캠퍼스 등이 가까워 지식산업센터로서 입지적인 메리트가 높은 것은 물론 수원 일반산업단지 등도 가까워 인근 협력 업체들의 시너지 효과를 얻을 수 있습니다.
이 같은 이유로 '에이스 스마트윙 영통' 지식산업센터 입주(2021년11월)가 가까워짐으로써 분양권 전매, 임대 등 입주 문의가 급증하고 있습니다.
수원 '에이스 스마트윙 영통' 단지 안내
1. 사업개요
단지는 수원시 영통구 원천동 246번지 외 2필지에 위치하며, 대지면적 4555㎡에 연면적 29,822.86㎡(9,037평), 지하 2층~지상 14층 규모로 구성되었습니다. 주차는 법정 주차 대수 보다 2배 가까이 많게 구성되어 비교적 여유가 있으며, 관리비도 지역난방의 열병합 시스템을 이용하기 때문에 평당 4,000원 정도로 저렴한 편입니다.
지하층은 주차장으로 구성되며, 지상 4층까지는 제조 및 물류기업의 업무 효율성으로 높이기 위해 호실 앞까지 차량이 진입할 수 있도록 드라이브인 시스템으로 계획하였습니다. 5층부터 14층까지는 섹션 오피스로 구성했습니다.
2. 위치 안내
에이스 스마트윙 영통 지식산업센터는 2026년 개통 예정인 인동선 원천역과 약 500m 거리의 역세권 입지에 삼성 디지털시티와 영통 공업지역이 만나는 대로변 입지에 위치하고 있습니다. 삼성전자 및 광교테크노벨리, 경기도청, 고등법원, 검찰청 등이 있는 광교신도시와도 인접해 있어 기업들에게 인기가 많은 지역입니다.
무엇보다 오랫동안 삼성전자를 중심으로 도시가 형성되어온 지역이므로 교통 및 생활 편의성이 뛰어난 곳입니다. 특히 용서고속도로 흥덕 IC에서 8분대, 경부고속도로 신갈 IC에서 10분대에 진입이 가능할 만큼 도심 및 인근 도시로의 이동이 용이합니다. 또 SRT 및 GTX 동탄역에서 21분대에 접근이 가능할 것입니다.
3. 특장점
에이스 스마트윙 영통 지식산업센터의 특장점은 중소형 면적으로 구분 소유가 되어 있어 스타트업 또는 1~2기업 업무공간에 최적화되었으며, 원하는 면적으로 다양한 호실들을 선택할 수 있습니다. 대로변에 위치하고 있어 단지 내 차량 접근성이 뛰어난 것은 물론 각 호실별 조망권을 대부분 확보하였습니다.
지하 1층부터 4층까지 주차장과 드라이브인 시스템을 적용, 화물 전용 엘리베이터를 배치해 물류 이동이 원활히 할 수 있도록 하였습니다. 전 호실은 서비스로 제공되는 발코니를 적용해 실사용 면적보다 넓게 사용할 수 있도록 하였으며, 입주사 직원들의 업무 편의성을 높이기 위해 옥상정원과 휴게공간을 제공하였습니다.
다양한 세제 및 금융 지원 혜택도 제공되는데 기업들의 초기 투자 부담을 줄일 수 있도록 80~90%의 저금리 대출을 알선해 주며, 사무실 이전 시 부담을 최소화할 수 있는 취득세 50%, 재산세 37.5% 감면 혜택을 받을 수 있도록 지원합니다.
4. 배치 및 평면 안내
■ 단지 배치도
단지는 삼성로를 중심으로 메인 출입구가 있으며, 주차장 출입구는 매영로(왕복4차선도로)에서 진입할 수 있도록 하였습니다. 건물은 주출입구를 비롯해 대부분의 호실들이 남동향으로 배치되어 있으며, 일부 호실은 북서 방향과 남서방향으로 배치되었습니다.
지원시설인 상가는 삼성로와 나란히 배치하였으며, 상가의 광고효과와 집객력을 높일 수 있도록 층고를 5.1m로 높게 하고 대로변에는 별도의 보행광장과 휴게공간을 조성하였습니다.
■ 지하 2층 평면도
- 주차장 및 공장, 창고, 층고 4.5m, 천정고 2.7m
■ 지하 1층 평면도
- 주차장 및 공장, 창고, 층고 4.5m, 천정고 2.7m
■ 1층 평면도
- 외부 주차장 및 근린생활시설(상가) 16실, 층고 5.1m, 천정고 3.6m
■ 2층 평면도
- 주차장 및 근린생활시설(상가) 20실, 층고 5.1m, 천정고 3.6m
■ 3층 평면도
- 주차장 및 지식산업센터(공장) 18실, 층고 5.1m, 천정고 3.6m
■ 4층 평면도
- 주차장 및 지식산업센터(공장) 18실, 층고 5.6m, 천정고 4.2m
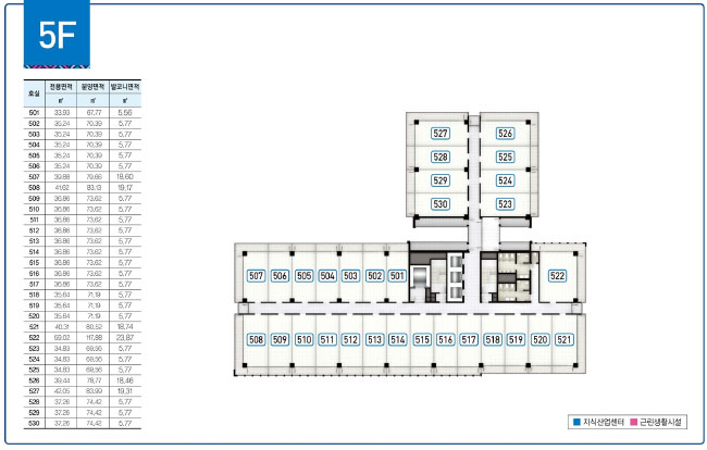
■ 5층 평면도
- 지식산업센터(공장) 30실, 층고 5.6m, 천정고 4.2m
■ 6층 평면도
- 지식산업센터(공장) 30실, 층고 3.9m, 천정고 2.7m
■ 7층 평면도
- 지식산업센터(공장) 30실, 층고 3.9m, 천정고 2.7m
■ 8층 평면도
- 지식산업센터(공장) 30실, 층고 3.9m, 천정고 2.7m
■ 9층 평면도
- 지식산업센터(공장) 30실, 층고 3.9m, 천정고 2.7m
■ 10층 평면도
- 지식산업센터(공장) 30실, 층고 3.9m, 천정고 2.7m
■ 11층 평면도
- 지식산업센터(공장) 30실, 층고 3.9m, 천정고 2.7m
■ 12층 평면도
- 지식산업센터(공장) 30실, 층고 3.9m, 천정고 2.7m
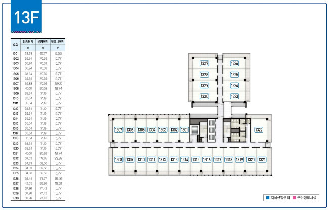
■ 13층 평면도
- 지식산업센터(공장) 30실, 층고 3.9m, 천정고 2.7m
■ 14층 평면도
- 지식산업센터(공장) 30실, 층고 4.2m, 천정고 2.7m
수원'에이스 스마트윙 영통' 지식산업센터 준공 예정은 2021년 11월 말입니다. 분양권 전매 및 임대 문의는 저희 굿비즈부동산으로 연락 주세요.
○ 문의: 031-214-4314
○ 홈페이지: http://goodbiz.kr/
굿비즈부동산
굿비즈부동산 중개매물 안내, 경기남부권(수원/광교/기흥/동탄) 지식산업센터 분양 및 임대 전문, 투자컨설팅 제공, 문의 031-214-4313
goodbiz.kr
'• 분양 및 공급 단지 안내' 카테고리의 다른 글
신동탄 헤센 IT타워 지식산업센터 분양, 수원 망포역세권 단지로 주목! (0) | 2021.09.28 |
---|---|
수원 '테크트리 영통' 지식산업센터 단지 안내 (0) | 2021.09.04 |
기흥 지식산업센터 단지 안내, 제조업 및 첨단업종 입주 가능 (0) | 2021.07.19 |
기흥ICT밸리 SK V1 지식산업센터 단지 안내 (0) | 2021.07.12 |
지식산업센터 투자 열쇠는 입지, 광교플렉스데시앙 지식산업센터 분양 안내 (0) | 2020.12.31 |