일 | 월 | 화 | 수 | 목 | 금 | 토 |
---|---|---|---|---|---|---|
1 | 2 | 3 | 4 | |||
5 | 6 | 7 | 8 | 9 | 10 | 11 |
12 | 13 | 14 | 15 | 16 | 17 | 18 |
19 | 20 | 21 | 22 | 23 | 24 | 25 |
26 | 27 | 28 | 29 | 30 | 31 |
Tags
- 광교센트럴푸르지오시티월세
- 광교유니코어
- 광교두산위브
- 광교엘포트아이파크원룸월세
- 광교사무실임대
- 광교오피스텔월세
- 에이스광교타워3차임대
- 광교지식산업센터
- 수원지식산업센터임대
- 광교오피스텔매매
- 광교엘포트아이파크
- 광교오피스텔
- 광교오피스텔원룸
- 광교오피스텔전세
- 광교오피스매매
- 광교sk뷰레이크타워
- 광교효성해링턴타워오피스
- 광교오피스텔원룸전세
- 광교엘포트아이파크원룸매매
- 힐스테이트광교중앙역
- 광교오피스텔원룸월세
- 광교엘포트아이파크원룸전세
- 광교사무실
- 광교센트럴푸르지오시티원룸월세
- 광교센트럴푸르지오시티원룸
- 광교오피스텔원룸매매
- 광교지식산업센터임대
- 광교효성해링턴타워
- 광교엘포트아이파크원룸
- 광교센트럴푸르지오시티
Archives
- Today
- Total
굿비즈부동산ㅣblog
기흥 ICT밸리 SK V1 지식산업센터 'C블록' 단지 안내 본문
기흥ICT밸리 SK V1 C동은 용인첨단산업단지 A, B동(2021년 5월 준공)에 이어 두번째로 공급된 지식산업센터입니다.
단지는 기흥역과 신갈역 사이 대로변에 위치하며 대지 2,743㎡ 부지에 지하5층, 지상15층 연면적 21,937.52㎡규모로 공급되었습니다. 용도는 지식산업센터, 근린생활시설로 구성되었습니다.
1차로 공급된 '기흥 ICT 밸리 SK V1 A, B동'은 42,777㎡ 대지에 연면적 197,690.26㎡(59,906.13평) 지하 6층~지상 29층 규모 2개동으로 구성되었으며, 수원 생활권에 속해 있어 편리한 도시 인프라 시설을 모두 누릴 수 있는 첨단산업단지입니다. 2021년 6월부터 입주를 시작하였으며 사업 초기부터 경기남부권 랜드마크 건물로 평가받고 있는 지식산업센터입니다.
■ 사업개요
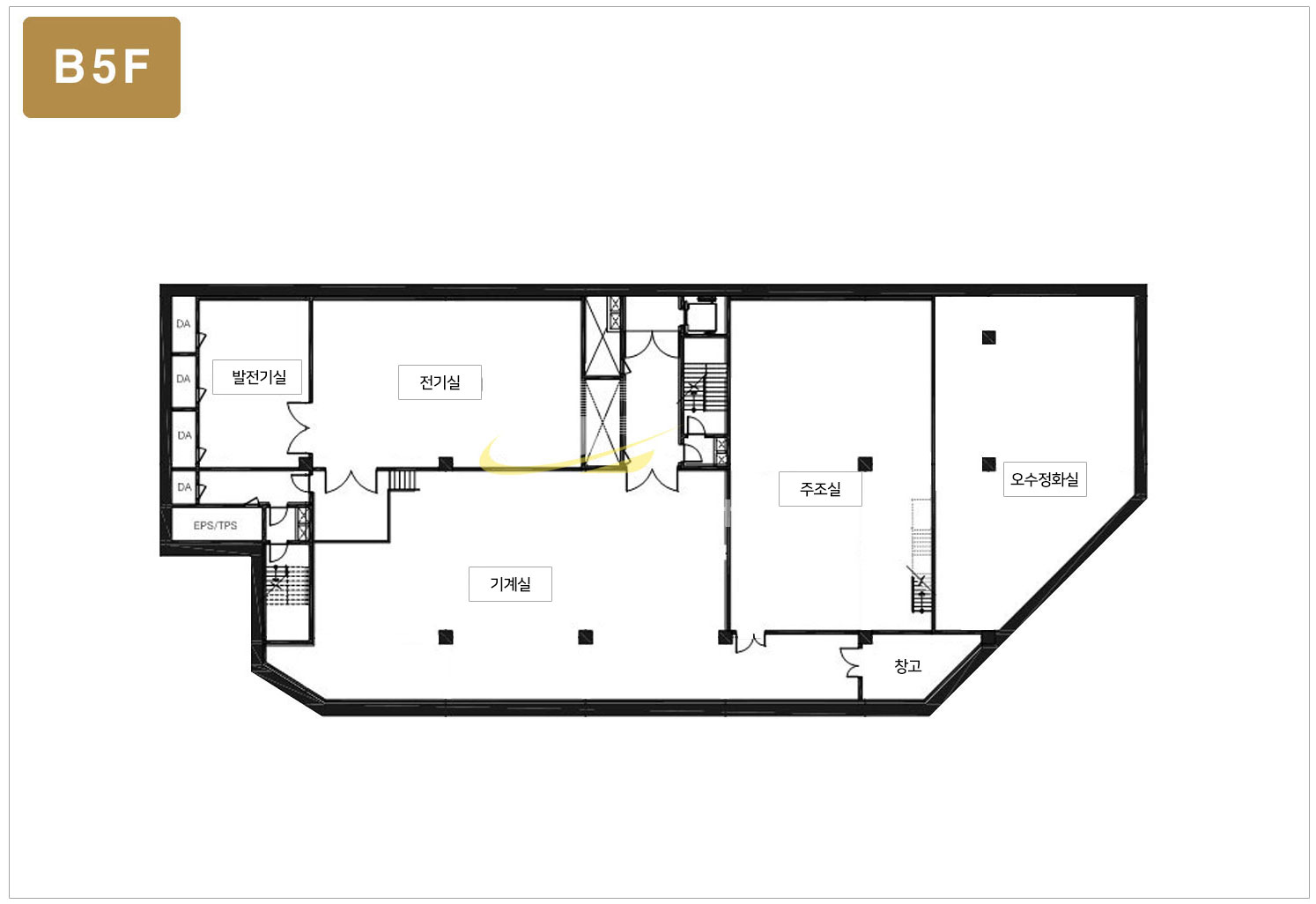
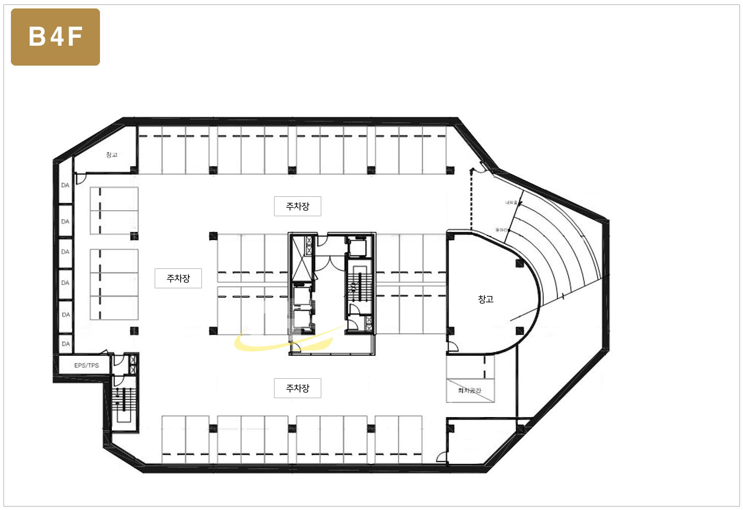
■ 배치도 및 평면도
■ 단면도
■ 중개안내
수원, 광교, 용인 기흥 등 경기 남부권 지식산업센터 매매 및 임대 관련 문의는 저희 부동산으로 연락 주시면 성심성의껏 자세하게 안내드리겠습니다.
○ 문의: Tel) 031-214-4314,
Mobile) 010-4481-1318
○ 중개매물 사이트: http://goodbiz.kr
굿비즈부동산 매물노트
굿비즈부동산 중개매물 안내, 경기남부권(수원/광교/기흥/동탄) 지식산업센터 분양 및 임대 전문, 투자컨설팅 제공, 문의 031-214-4313
goodbiz.kr
반응형
'• 분양 및 공급 단지 안내' 카테고리의 다른 글
시그니처광교 지식산업센터 단지 안내 (0) | 2023.01.17 |
---|---|
평촌역 더에이치타워919 지식사업센터 단지 안내 (1) | 2022.12.16 |
평촌역 더에이치타워919 지식사업센터 분양 안내 (0) | 2022.12.16 |
광교 더퍼스트 지식산업센터 단지 안내 (0) | 2022.11.16 |
수원 「영통 현대테라타워」지식산업센터 단지 안내 (0) | 2022.05.02 |